156 миллионов направят на благоустройство общественных территорий

В рамках реализации национального проекта «Формирование современной городской среды» в 2021 году на благоустройство общественных территорий Брюховецкого района планируется направить более 156 миллионов рублей. Средства, выделенные в рамках нацпроекта, распределены среди четырёх сельских поселений.

 В Новоджерелиевском начнётся второй этап благоустройства парковой зоны, прилегающей к Дому культуры станицы и территории центрального мемориала. На завершающий этап работ выделено 47,8 млн. рублей.

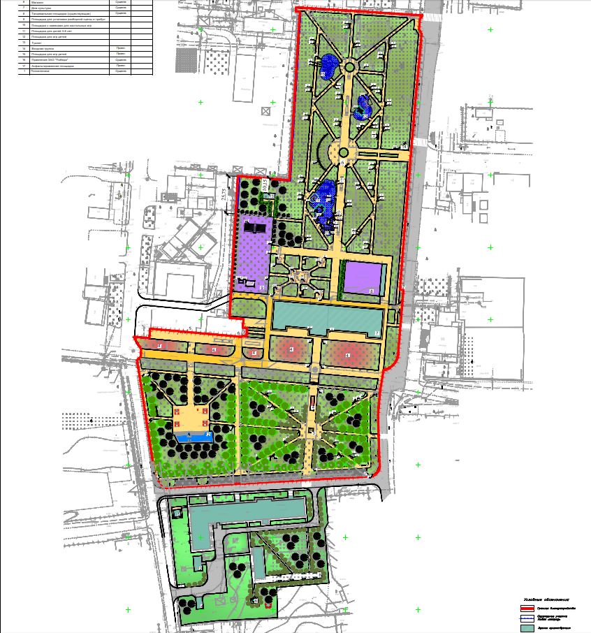
 Новый парк появится в селе Свободном. Масштабы проекта вы можете оценить на дизайн-проекте. На эти цели направят 44 млн. рублей.

 Благоустроят и центральный парк в станице Переясловской. В 2019 году в рамках нацпроекта был капитально отремонтирован сельский Дом Культуры, а в текущем - рядом появится красивый обновлённый парк. Стоимость проекта - 22 млн. рублей.

Еще две парковые территории откроются в районном центре. По итогам голосования по выбору общественной территории победителями прилегающая территория к Дому культуры им. И.И. Буренкова и парковая зона возле школы N 20 по улице имени Ленина. На реализацию проектов потребуется 42,2 млн. рублей.

 

Возврат к списку